蘑菇视频展示
联系我们
蘑菇视频 有限公司
联系人:王经理
手机:0086 134 6668 6188
地址:北京市房山区辰光东路绿地启航国际三期9号楼403
邮编:102433
销售热线:4006-053-365
邮箱:jgwangguang@126.com
Beijing Junguang Weiye Technology Co., Ltd
Contact: Manager Wang
Mobile: 0086 134 6668 6188
Address: 403, Building 9, Greenland Qihang International Phase III, Chenguang East Road, Fangshan District, Beijing
Zip code: 102433
Sales Hotline: 4006-053-365
E-mail:jgwangguang@126.com

防风卷帘系统优点:
- 夏季和冬季均可调控开启,方便实现牛舍最 大自然通风效果。
- 轻松调节室内空气质量。
- 冬季在两端有山墙防护情况下,仅安装北侧卷帘即可实现舍内0度以上。
- 解决冬季风冷造成的隐性冷应激,稳定产奶量,奶牛不减产。
- 可实现冬季刮板正常运行,水槽最 大程度节能降耗。
- 抗风最 大可达8级,使用寿命大于8年。
Advantages of windproof roller shutter system:
- Both summer and winter can be adjusted to achieve maximum natural ventilation in the cowshed.
- Easily adjust indoor air quality.
- In winter, with the protection of mountain walls at both ends, installing only the north side rolling shutter can achieve a temperature above 0 degrees inside the building.
- Solve the implicit cold stress caused by winter wind cooling, stabilize milk production, and ensure that cows do not reduce production.
- It can achieve normal operation of the winter scraper and maximize energy saving and consumption reduction of the sink.
- The maximum wind resistance can reach level 8, and the service life is more than 8 years.
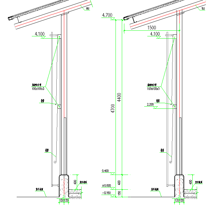
安装时,上部分卷帘固定于上横梁,下部分卷帘固定于下横梁。卷帘系统的上横梁一般位于柱顶向下0.5米处,下横梁位于中间部位,(横梁一般采用100*100*3.5镀锌方管,甲方负责)。该系统采用24V电动升降系统,每段长度不大于30米;为增加抗风系数,除考虑顶端预留0.5米通风孔外,每2米设置内外2根防风镀锌钢管(32*2.5镀锌圆管)。与此同时,卷帘布内置纤维网格,纤维网格密度5*5mm,各部分参数如下:
序 |
组成部件 |
数量 |
单位 |
参数描述 |
材料组成 |
PVC涂层布 |
2.2米幅宽 |
平米 |
单组卷帘长度小于30m,每两组卷帘中间设置防护罩,宽度1.5m; |
内、外防风杆 |
|
支 |
内外防风杆采用32*2.5热镀锌管,2支/2m |
|
防风杆套管 |
|
支 |
PE材质,使用寿命大于5年,2支/2m; |
|
内、外防风杆上、下托架 |
|
套 |
采用镀锌钢板冲压成型,厚度4.5mm,紧固防风杆; |
|
卡槽、卡簧 |
|
米 |
卡槽采用镀锌板冲压成型,卡簧采用喷塑处理 |
|
卷轴 |
|
米 |
采用32*2.5热镀锌管 |
|
塑料卷轴卡 |
|
个 |
特制,外径32钢管专用,PVC材质 |
|
爬升电机 |
|
台 |
24V,150W,自带行程调节功能 |
|
正反保护电源 |
|
个 |
一带一 |
|
镀锌钢网栏片 |
|
平米 |
4#喷塑钢网,规格:1.5m*3m |
|
镀锌钢网龙骨 |
|
支 |
30*30*2.5镀锌钢管,三排设置; |
|
爬升杆 |
|
支 |
32*2.5热镀锌管 |
|
防护罩 |
|
个 |
规格采用1.5m*4.3m,采用30*30*2.5镀锌钢管边框,卡槽卡簧紧固,附着PVC涂层布 |
|
电线、穿线管 |
1 |
批 |
|
|
紧固件、标准螺栓、自攻丝 |
1 |
批 |
|
|
|
运输及安装 |
|
|
|
During installation, the upper part of the roller shutter is fixed to the upper crossbeam, and the lower part of the roller shutter is fixed to the lower crossbeam. The upper crossbeam of the roller shutter system is generally located 0.5 meters below the top of the column, and the lower crossbeam is located in the middle part (the crossbeam is generally made of 100 * 100 * 3.5 galvanized square pipes, which are the responsibility of Party A). The system adopts a 24V electric lifting system, with each section length not exceeding 30 meters; To increase the wind resistance coefficient, in addition to considering reserving a 0.5 meter ventilation hole at the top, two windproof galvanized steel pipes (32 * 2.5 galvanized circular pipes) are installed every 2 meters, both inside and outside. At the same time, the roller shutter fabric is equipped with fiber mesh, with a fiber mesh density of 5 * 5mm. The parameters of each part are as follows:
No. |
component |
quantity |
unit |
parameter description |
Material composition |
PVC coated fabric |
2.2 meters in width |
square metre |
The length of a single group of roller blinds is less than 30m, and a protective cover is set in the middle of every two groups of roller blinds, with a width of 1.5m; |
Inner and outer windproof poles |
|
branch |
The inner and outer windproof poles are made of 32 * 2.5 hot-dip galvanized pipes, with 2 pieces/2m in length |
|
Windproof rod sleeve |
|
branch |
PE material, with a service life of more than 5 years, 2 pieces/2m; |
|
Upper and lower brackets for inner and outer windproof poles |
|
set |
Made of galvanized steel sheet stamping, with a thickness of 4.5mm, and fastened with windproof poles; |
|
Card slot, card spring |
|
rice |
The card slot is formed by stamping galvanized sheet, and the card spring is treated with spray coating |
|
Scroll |
|
rice |
Using 32 * 2.5 hot-dip galvanized pipes |
|
Plastic scroll card |
|
individual |
Specially designed for steel pipes with an outer diameter of 32, made of PVC material |
|
Climb motor |
|
platform |
24V, 150W, with built-in stroke adjustment function |
|
Positive and negative protection power supply |
|
individual |
Belt and Road Initiative |
|
Galvanized steel mesh fence |
|
square metre |
4 # Spray coated steel mesh, specification: 1.5m * 3m |
|
Galvanized steel mesh keel |
|
branch |
30 * 30 * 2.5 galvanized steel pipes, set in three rows; |
|
Climbing rod |
|
branch |
32 * 2.5 hot-dip galvanized pipe |
|
protection cover |
|
individual |
The specification adopts 1.5m * 4.3m, with a 30 * 30 * 2.5 galvanized steel pipe frame, fixed with slot and spring, and attached with PVC coated cloth |
|
Wire and conduit |
1 |
batch |
|
|
Fasteners, standard bolts, self tapping screws |
1 |
batch |
|
|
|
Transportation and installation |
|
|
|
双轴向PVC涂层布 物理指标性能表 |
|||||||||
序号 |
型号 |
色号 |
克重 |
厚度 |
经向 |
纬向 |
经向 |
纬向 |
剥离强力 |
|
|
|
(g/平米) |
(mm) |
(N/5cm) |
(N/5cm) |
N |
N |
(N/5cm) |
1 |
QZ450-1 |
250# |
450±20 |
0.33±0.02 |
≥1250 |
≥1250 |
≥200 |
≥180 |
≥40 |
2 |
QZ400-1 |
4101# |
400±20 |
0.30±0.02 |
≥1250 |
≥1250 |
≥200 |
≥180 |
≥40 |
3 |
Q525-1 |
33510/699# |
525±20 |
0.40±0.02 |
≥1250 |
≥1250 |
≥200 |
≥180 |
≥70 |
4 |
Q525-1 |
530# |
525±20 |
0.40±0.02 |
≥1250 |
≥1250 |
≥200 |
≥180 |
≥70 |
5 |
Q525-1 |
541# |
525±20 |
0.40±0.02 |
≥1250 |
≥1250 |
≥200 |
≥180 |
≥70 |
6 |
Q550-2 |
330# |
550±20 |
0.42±0.02 |
≥1250 |
≥1250 |
≥200 |
≥180 |
≥70 |
7 |
Q550-2 |
650# |
550±20 |
0.42±0.02 |
≥1250 |
≥1250 |
≥200 |
≥180 |
≥70 |
8 |
I600-2 |
383# |
600±30 |
0.46±0.02 |
≥2000 |
≥1800 |
≥320 |
≥280 |
≥85 |
9 |
I600-2 |
543# |
600±30 |
0.46±0.02 |
≥2000 |
≥1800 |
≥320 |
≥280 |
≥85 |
10 |
I650-1 |
150# |
650±30 |
0.46±0.02 |
≥2000 |
≥1800 |
≥320 |
≥280 |
≥85 |
11 |
Z680-1 |
550# |
680±30 |
0.52±0.03 |
≥2500 |
≥2500 |
≥400 |
≥400 |
≥100 |
12 |
Z680-1 |
699# |
680±30 |
0.52±0.03 |
≥2500 |
≥2500 |
≥400 |
≥400 |
≥100 |
13 |
Z680-2 |
251# |
680±30 |
0.52±0.03 |
≥2500 |
≥2500 |
≥400 |
≥400 |
≥100 |
14 |
Z680-AC |
420# |
680±30 |
0.52±0.03 |
≥2500 |
≥2500 |
≥400 |
≥400 |
≥100 |
15 |
ZH800-1 |
478# |
800±50 |
0.65±0.05 |
≥2500 |
≥2500 |
≥400 |
≥400 |
≥100 |
16 |
ZH1050-1 |
548# |
1050±50 |
0.80±0.05 |
≥2500 |
≥2500 |
≥400 |
≥400 |
≥100 |
17 |
CH1050-1 |
150# |
1050±50 |
0.80±0.05 |
≥5000 |
≥4500 |
≥800 |
≥750 |
≥110 |
18 |
JN600-1 |
5010# |
600±50 |
0.50±0.03 |
≥3000 |
≥3000 |
≥500 |
≥500 |
≥80 |
19 |
网眼 |
558# |
500±30 |
/ |
/ |
/ |
/ |
/ |
/ |
20 |
透明网格 |
透明 |
500±30 |
/ |
/ |
/ |
/ |
/ |
/ |
Biaxial PVC coated fabric Physical Index Performance Table |
|||||||||
No. |
Type |
Color No. |
Weight |
thickness |
Warp Tensile strength |
Weft Tensile strength |
Warp |
Weft |
Peeling strength |
|
|
|
(g/㎡) |
(mm) |
(N/5cm) |
(N/5cm) |
N |
N |
(N/5cm) |
1 |
QZ450-1 |
250# |
450±20 |
0.33±0.02 |
≥1250 |
≥1250 |
≥200 |
≥180 |
≥40 |
2 |
QZ400-1 |
4101# |
400±20 |
0.30±0.02 |
≥1250 |
≥1250 |
≥200 |
≥180 |
≥40 |
3 |
Q525-1 |
33510/699# |
525±20 |
0.40±0.02 |
≥1250 |
≥1250 |
≥200 |
≥180 |
≥70 |
4 |
Q525-1 |
530# |
525±20 |
0.40±0.02 |
≥1250 |
≥1250 |
≥200 |
≥180 |
≥70 |
5 |
Q525-1 |
541# |
525±20 |
0.40±0.02 |
≥1250 |
≥1250 |
≥200 |
≥180 |
≥70 |
6 |
Q550-2 |
330# |
550±20 |
0.42±0.02 |
≥1250 |
≥1250 |
≥200 |
≥180 |
≥70 |
7 |
Q550-2 |
650# |
550±20 |
0.42±0.02 |
≥1250 |
≥1250 |
≥200 |
≥180 |
≥70 |
8 |
I600-2 |
383# |
600±30 |
0.46±0.02 |
≥2000 |
≥1800 |
≥320 |
≥280 |
≥85 |
9 |
I600-2 |
543# |
600±30 |
0.46±0.02 |
≥2000 |
≥1800 |
≥320 |
≥280 |
≥85 |
10 |
I650-1 |
150# |
650±30 |
0.46±0.02 |
≥2000 |
≥1800 |
≥320 |
≥280 |
≥85 |
11 |
Z680-1 |
550# |
680±30 |
0.52±0.03 |
≥2500 |
≥2500 |
≥400 |
≥400 |
≥100 |
12 |
Z680-1 |
699# |
680±30 |
0.52±0.03 |
≥2500 |
≥2500 |
≥400 |
≥400 |
≥100 |
13 |
Z680-2 |
251# |
680±30 |
0.52±0.03 |
≥2500 |
≥2500 |
≥400 |
≥400 |
≥100 |
14 |
Z680-AC |
420# |
680±30 |
0.52±0.03 |
≥2500 |
≥2500 |
≥400 |
≥400 |
≥100 |
15 |
ZH800-1 |
478# |
800±50 |
0.65±0.05 |
≥2500 |
≥2500 |
≥400 |
≥400 |
≥100 |
16 |
ZH1050-1 |
548# |
1050±50 |
0.80±0.05 |
≥2500 |
≥2500 |
≥400 |
≥400 |
≥100 |
17 |
CH1050-1 |
150# |
1050±50 |
0.80±0.05 |
≥5000 |
≥4500 |
≥800 |
≥750 |
≥110 |
18 |
JN600-1 |
5010# |
600±50 |
0.50±0.03 |
≥3000 |
≥3000 |
≥500 |
≥500 |
≥80 |
19 |
mesh |
558# |
500±30 |
/ |
/ |
/ |
/ |
/ |
/ |
20 |
grid |
Transparent |
500±30 |
/ |
/ |
/ |
/ |
/ |
/ |